English
Español
Português
русский
Français
日本語
Deutsch
tiếng Việt
Italiano
Nederlands
ภาษาไทย
Polski
한국어
Svenska
magyar
Malay
বাংলা ভাষার
Dansk
Suomi
हिन्दी
Pilipino
Türkçe
Gaeilge
العربية
Indonesia
Norsk
تمل
český
ελληνικά
український
Javanese
فارسی
தமிழ்
తెలుగు
नेपाली
Burmese
български
ລາວ
Latine
Қазақша
Euskal
Azərbaycan
Slovenský jazyk
Македонски
Lietuvos
Eesti Keel
Română
Slovenski
मराठी
Srpski језик Byjinfeng Weldcut'un ürettiği tüm 3 1 saatlik kiriş kaynakları için, çelik yapı, köprü, inşaattan son kullanıcılar için üretkenliği arttırmak için en yüksek verimlilik makinesi olan 12 ay garanti olacaktır.
|
Model |
Zhjj15 |
ZJ18 |
ZHJ20 |
|
T-Beam WebHeight (H) |
200 ~ 1500mm |
200-1800 |
200-2000mm |
|
Web Kalınlığı (D) |
6 ~ 12mm |
6 ~ 19mm |
6 ~ 30mm |
|
Flanşwidth (b) |
200 ~ 800mm |
200 ~ 1000mm |
|
|
Flanşethickness (t) |
6 ~ 25mm |
6 ~ 40mm |
|
|
Işın uzunluğu (l) |
4000 ~ 15000mm |
4000 ~ 15000mm |
4000 ~ 15000mm |
|
Işın malzemesi |
S235 |
||
|
Kaynak türü |
Batık ark enine fileto kaynağı |
||
|
Kaynak Güç Kaynağı |
Tek tel veya ikiz tel tipi |
Tek tel |
Tek tel |
|
Kaynak çıkış hızı |
200 ~ 1000 mm/dakika |
||
|
Meşale açısı: |
45 ° ince ayar |
||
|
Hidrolik basınç |
≤14 MPa |
||
|
Akı kurtarma sistemi |
2 set |
||
|
Akı hunisi hacmi |
2 × 50l |
||
|
Giriş Konveyör Silindir: |
12000 mm |
||
|
Çıkış Konveyör Silindir: |
12000 mm |
||
|
Ana makine gücü |
18.0kw |
||
|
Hidrolik Sistem: |
1set |
||
|
Düzleştirme ünitesi |
1 set, makineye entegre |
||
|
Güç kaynağı: |
AC/380 V/50 Hz/3ph |
||
|
Düzleştirme özelliği |
6-40mm |
||
3-1 saatlik ışın kaynak hatları, kaynaktan sonra H ışını, T-kiriş düzeneği, kaynak ve flanş deformasyonu düzleştirmesinin birleşik fonksiyonuna sahiptir. Böylece, H ışını ve t ışını üretimini doğru ve hızlı bir şekilde gerçekleştirebilir. Aşağıdaki avantajlara sahiptir: basit çalışma, daha az işçilik maliyeti ve küçük kaplama alanı.
Bu çizginin kaynaklanacak yapısal çelik plaka kalınlığına göre seçmeniz için iki isteğe bağlı kaynak işlemi vardır:
Seçenek A: Biriktirme oranı genel tek ark tek telli subalı ark kaynağından% 40 daha yüksek olan tek ark ikiz tel kaynağı, sot, özellikle kalınlığın 20 mm'den az olduğu yapı çelik kalınlığı için uygundur.
Seçenek B: Tek ark tek telli kaynak. Plaka kalınlığı kaynağının daha büyük aralığı için uygundur.
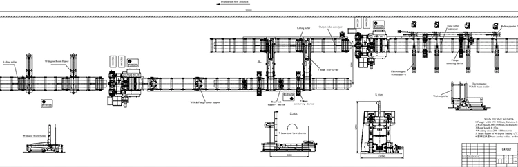
Standart ZHJ3-in 1 saat ışın kaynak çizgileri bir giriş silindir tablosu, ana kaynak ve düzleştirme istasyonu, çıkış çizgisi tablosundan oluşur. Ana kaynak ve düzleştirme istasyonunda, akı geri kazanım üniteleri ile kurulmuş, flanş ve ağ için meşale ve kümelenme cihazları ile birlikte, kaynak güç kaynakları, hidraülik istasyon ve kontrol kutusu da dahil olmak üzere standart çizgi.
1. Standartzhj3-in 1 saat ışın kaynak hatları

2. Seçenek 1:
Müşterilerden farklı isteklere göre, aşağıdakiler gibi TheZHJ3-in 1 H ışın kaynak hatları için yapılandırmayı da sunuyoruz:
Standart 3'ü 1 saatlik ışın kaynak hatlarına dayanarak, 4 adet mıknatıs yükleme kolu ve 4 adet Web destekçisi olan bir web yükleyici seti ekleyin. Her web yükleme kolunda çelik ağ plakasını tutmak için 2 adet mıknatıs vardır.

3. Seçenek 2:
Müşterilerden farklı isteklere göre, aşağıdakiler gibi TheZHJ3-in 1 H ışın kaynak hatları için yapılandırmayı da sunuyoruz:
Standart 3'ü 1 saatlik ışın kaynak hatlarına dayanarak, 4 adet mıknatıs yükleme kolu ve 4 adet Web destekçisi olan bir web yükleyici seti ekleyin. Her web yükleme kolunda çelik ağ plakasını tutmak için 2 adet mıknatıs vardır.
Yukarıdakilere dayanarak, kaynaklı ışını yatay konumda devirmek için çıkış silindir tablosuna bir set 90 derece ışın plipper ekleyebiliriz.

3. Seçenek 3:
Bazı müşterilerin üretim çıkışını artırması gerekebilir, 2 set kaynak istasyonundan oluşmak için bir kaynak çizgisine ihtiyaç duyarlar. Bir T kirası oluşturmak için ilk kaynak istasyonu, kaynaklı t-kirişini ve 2. flanşı bir H ışını oluşturmak için kaynaklamak için 2. kaynak istasyonu.
3.1 Standart 3'ü 1 saatlik ışın kaynak hatlarına dayanarak, 4 adet mıknatıs yükleme kolu ve 4 adet web destekçisi olan bir web yükleyici seti ekleyin. Her web yükleme kolunda çelik ağ plakasını tutmak için 2 adet mıknatıs vardır.
3.2 T-kirişini 180 derecede çevirmeye 1 set T-ışını devrilme eklemek ve T-ışını 2. flanşın üzerine 2. kaynak istasyonunun giriş silindiri tablosuna yerleştirmek için.
3.3 Kaynaklı ışını yatay konumda devirmek için 2. kaynak istasyonunun çıkış silindir tablosuna bir set 90 derece ışın plipper eklemek için.
T Işın ve H-ışını üretim akışı
Kullanıcıların fabrikasına kurulu 3'ü 1 arada entegre H-ışınlı kaynak hatları